Pronájem / Komerční nemovitosti / 5 m² / Ostrava
Pronájem skladového prostoru 5 m2, ulice Proskovická, Ostrava Výškovice
Proskovická 686/45, Výškovice, Ostrava, 700302 000 Kč/měs








Popis nemovitosti
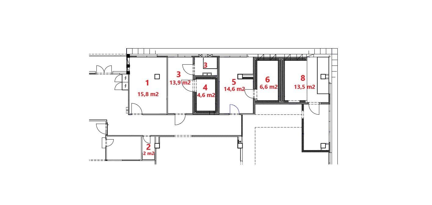
Hledáte bezpečné a pohodlné místo pro uskladnění osobních či firemních věcí? Nabízíme k pronájmu skladovací prostor o velikosti 5 m2 za cenu 2 000 Kč/měsíc v Ostravě Výškovicích, na ulici Proskovická. Prostor je suchý, s teplotou v zimním období kolem 15 °C. Přístup je zajištěn přes rampu a ocelová vstupní vrata. Lokalita je dobře dostupná a sklad je zabezpečen proti neoprávněnému vniknutí. Možné využití zahrnuje například sklad pro e-shop, úschovnu kol, sezónního vybavení, archiv dokumentů a další. Skladovací prostor je vyznačen v půdorysu jako místnost č. 5 a č. 6.
Základní informace
- Typ nemovitosti
- Komerční nemovitosti
- Dispozice
- Skladovací prostory
- Stav
- Dobrý
- Konstrukce
- Cihlová
- Typ budovy
- Atriový
- Podlaží
- 1. podlaží
Plochy
- Užitná plocha
- 5 m²
- Podlahová plocha
- 5 m²
Vybavení
- Topení: Bez topení
Poloha
Cena
2 000 Kč/měs
ID nemovitosti: 9962139
